0.3367 DUPLEX LAND LOT WITH APPROVED PLANS
CIREBA MLS LDX feed courtesy of CENTURY 21 THOMPSON REALTY
Description
Discover an exceptional opportunity in the heart of Savannah with this spectacular 0.3367 acre parcel of land, perfectly positioned for both lifestyle buyers and savvy investors.
This property offers outstanding flexibility, ideal for those looking to build an income-producing investment properties or create a custom forever home with additional rental potential. The generous lot size provides ample space for thoughtful design, outdoor living, and long-term value growth.
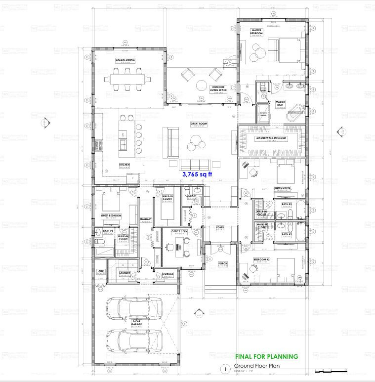
Even more compelling, the property comes with approved plans for a phenomenal 3,765 sq ft single-family residence (plans sold separately) featuring:
4 spacious bedrooms
4.5 bathrooms
Double-car garage
Expansive, well-designed living spaces
Whether you choose to move forward with the stunning pre-approved design or take advantage of the duplex zoning for maximum return on investment, this property presents a rare and versatile opportunity in one of Savannah’s most desirable locations.
Build your vision. Maximize your investment. Secure your future.
Property Address
Property Details
Amenities and Features
*Disclaimer: The information contained herein has been furnished by the owner(s) and or their nominee and represented by them to be accurate. The listing company, agent and CIREBA MLS disclaims any liability or responsibility for any inaccuracies, errors or omissions in the represented information. The listing details herein are also courtesy of CIREBA (Cayman Islands Real Estate Brokers Association) MLS and/or via LDX (Listing Data Exchange) feed. All the information contained herein is subject to errors, omissions, price changes, prior sale or withdrawal, without notice and is at all times subject to verification by the purchaser(s).
Map
Payment Calculator
- Principal and Interest
- Property Tax
- HOA fee



















