BEL AIR DR, SOUTH SOUND – CUSTOM NEW BUILD
CIREBA MLS LDX feed courtesy of PROPERTY CAYMAN LTD
Description
Welcome to this exceptional single-family residence located in one of the area’s most desirable neighbourhoods.
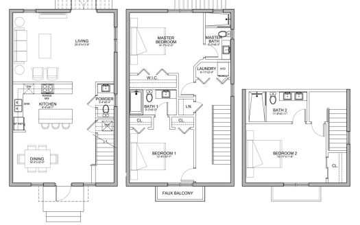
Offering approximately 3,911 square feet of thoughtfully designed living space, this impressive home blends comfort, style, and versatility, perfect for both everyday living and entertaining.
The home features 4 spacious bedrooms and 3.5 well-appointed bathrooms, along with a private den ideal for a home office, library, or media room.
An abundance of natural light highlights the open and inviting layout, while generous living and dining areas create a seamless flow throughout the home.
One of the standout features is the convertible attic, providing endless possibilities, whether you envision a guest suite, creative studio, fitness space, or additional living area. Step outside to your own private oasis, where a plunge pool offers a refreshing retreat and a built-in grilling patio sets the stage for unforgettable outdoor gatherings.
Set in a sought-after location known for its charm and convenience, this home offers the perfect balance of space, flexibility, and resort-style amenities. A rare opportunity to own a truly special property, designed to elevate the way you live.
Property Address
Property Details
Amenities and Features
*Disclaimer: The information contained herein has been furnished by the owner(s) and or their nominee and represented by them to be accurate. The listing company, agent and CIREBA MLS disclaims any liability or responsibility for any inaccuracies, errors or omissions in the represented information. The listing details herein are also courtesy of CIREBA (Cayman Islands Real Estate Brokers Association) MLS and/or via LDX (Listing Data Exchange) feed. All the information contained herein is subject to errors, omissions, price changes, prior sale or withdrawal, without notice and is at all times subject to verification by the purchaser(s).
Map
Payment Calculator
- Principal and Interest
- Property Tax
- HOA fee




























































