GEORGE TOWN BUSINESS PARK – WAREHOUSE, OFFICE, RETAIL AND MORE
CIREBA MLS LDX feed courtesy of 1503 PROPERTY GROUP LTD
Description
Positioned in the heart of George Town’s business district, GT Business Park offers a rare opportunity to secure a commercial space in a prime location within the city’s Golden Triangle, conveniently situated between Mary Street and Godfrey Nixon Way.
Key Features:
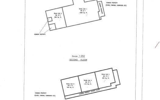
– Modern Commercial Units – 1,060 sq. ft. footprint with structural provisions for an additional second floor, expanding to 2,120 sq. ft. Add’l 600 sq ft of mezzanine is included in price.
– Strategic Location – High visibility and accessibility within George Town’s commercial hub.
– Sustainability Focused – Each unit is equipped with a 5KW solar panel system under the CUC CORE Programme, feeding unused electricity back to the grid for energy credits.
– Built for Resilience – Category 5 hurricane-rated structure with a rigid moment-resisting frame and 10′ above sea level elevation.
– High-Performance Building Envelope – Engineered for durability, efficiency, and climate resilience.
– Ample Parking – Over 60 parking spaces for convenience.
– Versatile Design – Open floor plans without load-bearing walls, allowing for flexible configurations such as:
– High-value climate-controlled storage
– Commercial enterprises
– Office spaces
– Multi-level setups
– Unlock the Potential of Your Business
Designed with adaptability in mind, these units seamlessly integrate structural, mechanical, electrical, and plumbing accommodations—allowing for maximum efficiency and customization.
Whether you need a high-tech workspace, showroom, or scalable business hub, GT Business Park provides a future-proof solution in a thriving commercial district.
Don’t miss this opportunity to be part of George Town’s revitalization and secure a space in one of the Cayman Islands’ most forward-thinking developments.
Property Address
Property Details
Amenities and Features
*Disclaimer: The information contained herein has been furnished by the owner(s) and or their nominee and represented by them to be accurate. The listing company, agent and CIREBA MLS disclaims any liability or responsibility for any inaccuracies, errors or omissions in the represented information. The listing details herein are also courtesy of CIREBA (Cayman Islands Real Estate Brokers Association) MLS and/or via LDX (Listing Data Exchange) feed. All the information contained herein is subject to errors, omissions, price changes, prior sale or withdrawal, without notice and is at all times subject to verification by the purchaser(s).
Map
Payment Calculator
- Principal and Interest
- Property Tax
- HOA fee




















