NORTH PALM HEIGHTS – UNIT #3
CIREBA MLS LDX feed courtesy of CENTURY 21 THOMPSON REALTY
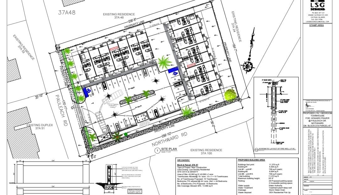
Description
Discover North Palm Heights, a brand-new pre-construction complex featuring 15 exclusive 1-bedroom, 1-bathroom units, each spanning 760 sqft. of modern living space.
Conveniently located in Northward, this sophisticated development is spectacular for investment or as a place to call home.
Experience an elevated lifestyle where refined living reaches new heights.
Enjoy a thoughtfully designed space that blends elegance and comfort seamlessly.
Opportunities like this do not come around often! Secure your place in North Palm Heights today!
Do not hesitate to call me for more information.
Property Address
Property Details
Amenities and Features
*Disclaimer: The information contained herein has been furnished by the owner(s) and or their nominee and represented by them to be accurate. The listing company, agent and CIREBA MLS disclaims any liability or responsibility for any inaccuracies, errors or omissions in the represented information. The listing details herein are also courtesy of CIREBA (Cayman Islands Real Estate Brokers Association) MLS and/or via LDX (Listing Data Exchange) feed. All the information contained herein is subject to errors, omissions, price changes, prior sale or withdrawal, without notice and is at all times subject to verification by the purchaser(s).
Map
Payment Calculator
- Principal and Interest
- Property Tax
- HOA fee























