OCEANS 9 VILLA 7 WEST BAY LUXURY BEACHVIEW DETACHED HOME
CIREBA MLS LDX feed courtesy of ENGEL & VOLKERS
Description
Experience the ultimate in resort-style living with this rare beach view detached villa in the exclusive, gated Oceans 9 community—offering privacy, luxury, and effortless island living without the high resort fees.
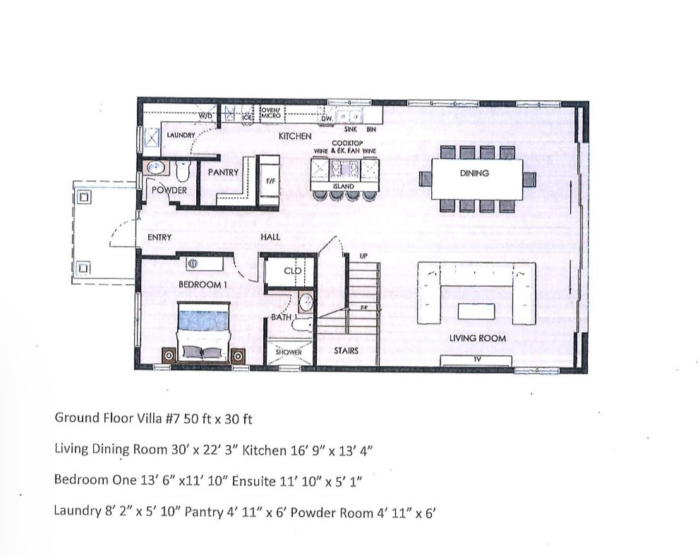
The open-concept ground floor features a bright, spacious living area flowing seamlessly into a chef’s kitchen with custom cabinetry and premium Kitchen Aid appliances, including dual wine coolers, ice maker, dishwasher, 5 burner propane cooktop and double wall ovens with warming drawer. There is a walk-in pantry with custom shelving and a dedicated laundry room with LG washer/dryer, sink, folding area and custom cabinets adding both functionality and convenience.
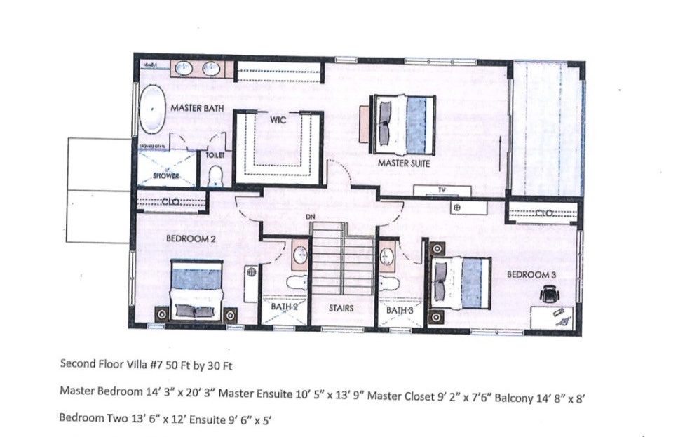
On the second floor the primary suite offers a spa-inspired bathroom with freestanding soaking tub and a glass enclosed shower with 3 shower heads. The expansive walk-in closet includes a wall of display shelving. The primary suite opens to a private balcony overlooking the pool with ocean views. Two additional king sized bedrooms each feature private en-suites and custom cabinetry.
The generous main floor fourth bedroom features an ensuite and built-in closets providing flexibility—ideal for guests, grandparents, or as a media room.
Enjoy all the independence of a standalone home with the ease and security of a professionally managed, gated community featuring two resort-style swimming pools, a meandering lazy river and direct access to a long, pristine beach. The 2.3 acres of lush landscaping is home to only nine villas.
This newly constructed 3,401 sq. ft. residence sits within a boutique development, thoughtfully designed to capture natural light while the front terrace remains shaded from the afternoon sun. Elevated 13 feet above sea level, it combines safety, serenity, and enduring quality, with solid poured concrete construction, hurricane-rated windows and doors and custom blinds (blackout in all bedrooms). The property also includes a private garage and two additional parking spaces for convenience.
Perfectly positioned just five minutes from the Kimpton Seafire Resort + Spa, Hotel Indigo, and the silver sands of Seven Mile Beach, this home places you near Grand Cayman’s five-star resorts, world-class spas, fine dining, and vibrant entertainment.
Offered unfurnished, with all high-end kitchen and laundry appliances included.
This is a rare opportunity to own a private beach view villa in one of Grand Cayman’s most desirable locations—where every day feels like a luxury vacation.
Excellent rental income, US$15k per month
Tour link: https://my.matterport.com/show/?m=NAfhtktpj2f
Property Address
Property Details
Amenities and Features
*Disclaimer: The information contained herein has been furnished by the owner(s) and or their nominee and represented by them to be accurate. The listing company, agent and CIREBA MLS disclaims any liability or responsibility for any inaccuracies, errors or omissions in the represented information. The listing details herein are also courtesy of CIREBA (Cayman Islands Real Estate Brokers Association) MLS and/or via LDX (Listing Data Exchange) feed. All the information contained herein is subject to errors, omissions, price changes, prior sale or withdrawal, without notice and is at all times subject to verification by the purchaser(s).
Virtual Tour
Map
Payment Calculator
- Principal and Interest
- Property Tax
- HOA fee






























































































